Description
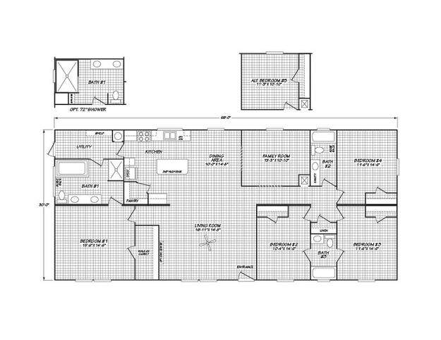
***UPDATE*** DELIVERY DATE 1/16/2026. Proposed new construction featuring the Cavco Model 3276 -- a 4BR/3BA home with flex/bonus room and approx. 2,280 sq. ft. Situated on 2.07 acres in a quiet, wooded country setting with views of a nearby horse pasture. Open floor plan with split-bedroom layout and spacious primary suite. Upgrades include fiberglass tub/showers, porcelain sinks, added front dormer for enhanced curb appeal, home set on concrete footers with double blocking for added stability, and Hardi board underpinning for FHA/VA lending compliance. Ample outdoor space offers privacy and room to enjoy relaxed country living.
-
4BEDS
-
2.07ACRES
-
3BATHS
-
01/2 BATHS
-
2,280SQFT
-
$110$/SQFT
School Information
Description
***UPDATE*** DELIVERY DATE 1/16/2026. Proposed new construction featuring the Cavco Model 3276 -- a 4BR/3BA home with flex/bonus room and approx. 2,280 sq. ft. Situated on 2.07 acres in a quiet, wooded country setting with views of a nearby horse pasture. Open floor plan with split-bedroom layout and spacious primary suite. Upgrades include fiberglass tub/showers, porcelain sinks, added front dormer for enhanced curb appeal, home set on concrete footers with double blocking for added stability, and Hardi board underpinning for FHA/VA lending compliance. Ample outdoor space offers privacy and room to enjoy relaxed country living.
Real estate listing marked with the CTMLS logo or an abbreviated logo are provided courtesy of the Charleston Trident MLS Broker Reciprocity Database. IDX information is provided exclusively for consumers' personal, non-commercial use and may not be used for any purpose other than to identify prospective properties consumers may be interested in purchasing. Information is deemed reliable but is not guaranteed accurate by the MLS or Three Real Estate | Realty One Group Coastal.
Data last updated: 2026-01-18T14:31:09.393.